想了解设备资料?报价?售后?请留言,速回电
厂家直销,留言立享本月优惠价免费提供环保政策、办厂手续、投资预算等资料
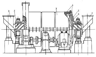
球磨机作为一种主要的选矿设备,被大多数的选矿工艺流程所利用。球磨机本身是一个卧式的筒体,内置钢球研磨介质,使物料在进入筒体内之后,通过与钢球碰撞,产生的冲击力达到破碎的效果。球磨机的结构简图,如图1-3中的右图所示。

图 1-3 球磨机的示意图
1—筒体;2—端盖:3—轴承;4—大齿圈
由于端盖上有中空轴颈,物料从左方的中空轴颈给入筒体,并逐渐向右方扩散移动,当物料自左向右的移动过程中,旋转筒体将钢球带到一定高度而落下致使物料击碎,而一部分钢球在筒体成泻落状态对物料有研磨作用,整个移动过程也是物料的粉碎过程。图1-3的球磨机工作原理中,由于筒体的旋转和磨介的运动,物料逐渐向右方扩散,最后从右方的中空轴颈溢流排出,该类型的球磨机称为溢流型球磨机。
另一种球磨机在右端(排料端)安设有格子板(见图1-4),格子板由若干块扇形箅孔板组成,扇形板上的箅孔宽度为7-20mm,一般以7-8mm为宜,物料可以通过箅孔进入格子板与端盖之间的空间内,然后由举板将物料向上提升,物料延着举板滑落经过锥形块面向右到中空轴颈,再由中空轴颈排出机外。
图 1-4 格子型球磨机
1—格子板;2—举板
第三种方式是采用风力排料,图1-5是风力排料球磨机。物料从给料口进入球磨机,随着磨机回转,磨机内磨介(钢球)对物料进行冲击与研磨,物料从磨机的左端(进口)逐惭向右端移动,在移动过程也即物料的破碎、粉磨过程,在球磨机的出口端与风管相连接,在管路系统中串接着选粉机、旋风分离器、除尘器及风机的进口。当风力系统开车时,球磨机机体内也处于低负压操作。当磨细的物料随着磨机的转动成松散状,并随着风力从出料口进入管道系统,由选粉器将粗颗粒分离后再送入球磨机进口,细粉由分离器分离回收,气体由风机排入大气。

图1-5风力排料球磨机
1—给料口;2—密封装置;3—筒体;4—石棉垫;5—毛毡;6—端盖;7—排料口
当磨矿介质的充填率(全部钢球的容积占筒体内部容积的百分数)占40%-50%,球磨机以不同转速回转时,筒体内的磨介可能出现三种基本运动状态。一种情况如图1-6(a),转速太高,离心力使钢球随着筒体一起旋转,整个钢球形成紧贴筒体内壁的一个圆环,称为“周转状态”,磨介对物料起不到冲击和研磨作用。第二种情况如图1-6(b),转速太慢,物料和磨介沿磨机旋转才升高到40°-50°(在升高期间各层之间也有相对滑动,称滑落),当磨介和物料与筒体的摩擦力等于动摩擦角时,摩介和物料就下滑,称为“泻落状态”,对物料有研磨作用,但对物料没有冲击作用,因而使粉磨效率差。第三种情况如图1-6(c),磨机转速比较适中,磨介随筒体提升到一定高度后,离开圆形轨道而沿抛物钱轨迹是自由落体下落,称为“抛落状态”,沿抛物线轨迹下落的钢球,对筒体下部的钢球或筒体衬板产生冲击和研磨作用,使物料粉碎。

图 1-6 筒体转速与研磨体运动的关系
球磨机工作原理比较简单、性能优势极为突出,是选矿行业必不可少的重要设备之一,如果您想了解球磨机价格详情,可随时拨打免费热线。
.jpg)
河南郑州球磨机价格详细垂询:0371-67772626
河南郑州球磨机厂家地址:河南郑州郑州高新技术产业开发区檀香路8号
上一篇:对辊破碎机的工作原理与结构
下一篇:雷蒙磨(雷蒙磨粉机)概述
想了解设备资料?报价?售后?请留言,速回电
厂家直销,留言立享本月优惠价免费提供环保政策、办厂手续、投资预算等资料
3分钟前 高先生:时产200吨制砂机报个价,处理鹅卵石
8分钟前 李先生:移动式破碎机怎么解决粉尘问题?
13分钟前 徐女士:需要制砂机,南宁能看制砂现场吗?
16分钟前 程先生:破碎生产线出个方案及报价,有什么售后服务?
22分钟前 郑女士:想了解时产500吨锤破,加工石灰石
31分钟前 吴先生:成套石头破碎设备有吗?给个详细产品资料
36分钟前 罗先生:每小时100吨左右的鄂破和反击破,推荐下型号
42分钟前 梁先生:膨润土磨到200目,用什么磨粉设备?
提交留言我们会第一时间回复您!
球磨机属于选矿类设备,它的功能与作用就是对各种物料实现磨矿作业,随着该设备应用范围的不断深入,它对物料种类的加工范围也是越来越宽泛,包括金属矿、非金属矿以及黑色金属等等,并且加工之后所呈现出的物料状态都能达到客户满意的效果。节能型球磨机是针对能源方面的过度消耗而新研制的一种设备,它不仅工作效率高,并且在节能环保领域能凸显该设备的具体优势,从市场上的销售量我们不难发现:该设备是功能性极强的设备,客户对它的评价相当高,这也是该设备有如此高销量的主要原因之一。
2016-07-28磨矿分级作业在选矿厂中十分重要,磨矿分级设备的投资占到总投资的45%,球磨机的钢球和衬板也是选矿厂运行成本的一部分,选择质量好的衬板,减少衬板消耗量对提高选矿厂经济效益和社会效益有非常重要的意义。
2015-03-23球磨机不但在建材工业中广泛应用,而且在冶金、选矿、化工、电力等工业中也广泛采用。本文主要介绍球磨机结构组成,工作原理,优点和缺点。
2014-04-15矿泥溜槽在选矿中有着相当广泛的额应用,下文将着重介绍该设备的工作原理,并历数其发展历史。
2013-10-06磨矿作业是破碎作业的继续,属于选别前的准备作业。磨矿作业中使用广泛的是球磨机,其磨矿过程是将物料装入连续转动的圆筒中,圆筒内装入一定数量的不同形状的研磨体。
2012-09-12多筒球磨机是粉磨设备的一种新型设备,它显著的特点就是节能。多筒球磨机与普通球磨机的节能相比,多筒要比普通的多出一倍之多。筒体由分布在圆周上的多个小筒所构成,着就是多筒球磨机和普通球磨机的根本区别。
2012-07-12