想了解设备资料?报价?售后?请留言,速回电
厂家直销,留言立享本月优惠价免费提供环保政策、办厂手续、投资预算等资料
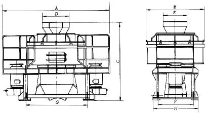
冲击式破碎机是多宝手机网页版登录入口机器的明星产品,深受客户欢迎,多宝手机网页版登录入口为破碎机的安装、调试提供全方位的服务。冲击式破碎机既可以在室内工作,也能适应室外的环境,如果安装在室内,需要注意冲击式破碎机的安装尺寸。
.jpg)
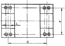
冲击式破碎机安装尺寸见图 1-8 和1-9 。

图 1-8 冲击式破碎安装尺寸图

图 1-9 冲击式破碎机地基尺寸
冲击式破碎机价格详细垂询:0371-67772626
冲击式破碎机厂家地址:郑州-国家高新技术产业开发区檀香路8号
上一篇:锤式破碎机生产能力计算公式
下一篇:冲击式破碎机的工作原理及性能
想了解设备资料?报价?售后?请留言,速回电
厂家直销,留言立享本月优惠价免费提供环保政策、办厂手续、投资预算等资料
3分钟前 高先生:时产200吨制砂机报个价,处理鹅卵石
8分钟前 李先生:移动式破碎机怎么解决粉尘问题?
13分钟前 徐女士:需要制砂机,南宁能看制砂现场吗?
16分钟前 程先生:破碎生产线出个方案及报价,有什么售后服务?
22分钟前 郑女士:想了解时产500吨锤破,加工石灰石
31分钟前 吴先生:成套石头破碎设备有吗?给个详细产品资料
36分钟前 罗先生:每小时100吨左右的鄂破和反击破,推荐下型号
42分钟前 梁先生:膨润土磨到200目,用什么磨粉设备?
提交留言我们会第一时间回复您!
鹅卵石是一种常见的自然形成的天然矿石,经常出现在河床边缘,经过河水不断的冲洗和摩擦而形成的,因为外形酷似鹅卵,所以,世人称之为鹅卵石。鹅卵石常常被用于建筑领域的装饰和美化的作用。
2017-07-08河南是我国冲击式破碎机的重要生产基地,这里的冲击破碎机厂家琳琅满目,厂家之间的竞争力较大,每个厂家报价也不同,为了帮助用户以低的价格选购到、优质的冲击式破碎机设备,下面就为大家简要介绍一下河南冲击式破碎机报价方面的相关信息。
2017-03-09新型螺旋洗砂机作为洗砂机类型的一种,是在普通洗砂机的基础上进行技术上的创新和结构上的改造,使其性能更加完善,生产效率得以提升!
2015-01-19断带故障是带式输送机工作过程中常见的一种故障,危害特别大,如造成设备损坏,甚至出现安全事故。这类事故恢复生产时间较长,如何将断带抓住,防止事故是各矿急需解决的问题。断带保护装置是一种可实现断带保护功能的装置,其设计合理、结构简单、动作可靠。
2013-12-11离心冲击式破碎机是河南多宝手机网页版登录入口机械近期新推出的破碎产品之一,该设备是经过多宝手机网页版登录入口破碎设备专家经过对冲击式破碎机的作用大量实验及研究而重新设计的新型冲击式破碎机。该设备的主轴安装过程如下。
2012-06-07进料端衬板和出料端衬板是安装橡胶衬板的重要,今天我们就了解一下橡胶衬板进料端和出料端的安装方法。进料端和出料端橡胶衬板都是用橡胶压条固定。
2011-12-21